As áreas interiores da casa são dispostas da seguinte forma:
| Andar | Divisão | Área (m2) | Altura Paredes | Volume (m3) | Perímetro Paredes (ml) | Área paredes (sqm) |
|---|---|---|---|---|---|---|
| RC | Hall | 10,29 | 2,5 | 25,725 | 12,62 | 31,55 |
| RC | WC | 7,39 | 2,5 | 18,475 | 10,45 | 26,125 |
| RC | Cozinha | 19,15 | 2,5 | 47,875 | 13,88 | 34,7 |
| RC | Sala | 60,94 | 2,7 | 164,538 | 28,29 | 76,383 |
| RC | S. Máquinas | 11,14 | 2,5 | 27,85 | 17,59 | 43,975 |
| RC | Hall traseiro | 1,34 | 2,7 | 3,618 | 1,7 | 45,9 |
| 1/2 | Patamar Churrasqueira | 2,59 | 4 | 10,36 | 5,33 | 21,32 |
| 1º | Hall | 6,05 | 2,7 | 16,335 | 8,95 | 24,165 |
| 1º | Lavandaria | 8,06 | 2,7 | 21,762 | 13,36 | 36,072 |
| 1º | Dispensa | 3,44 | 2,7 | 9,288 | 7,6 | 20,52 |
| 1º | Corredor | 7,43 | 2,7 | 20,061 | 15,52 | 41,904 |
| 1º | WC Pequeno | 5,44 | 2,7 | 14,688 | 9,52 | 25,704 |
| 1º | Q. Visitas | 12,61 | 2,7 | 34,047 | 14,38 | 38,826 |
| 1º | Q. RT | 19,53 | 2,7 | 52,731 | 18,82 | 50,814 |
| 1º | Q. G | 12,99 | 2,7 | 35,073 | 15,22 | 41,094 |
| 1º | WC Grande | 9,25 | 2,7 | 24,975 | 14,2 | 38,34 |
| 1º | Q. L | 14,6 | 2,7 | 39,42 | 15,74 | 42,498 |
| 1 1/2 | Patamar | 1 | 2,5 | 2,5 | 75 | |
| 2º | Sotão | 38,95 | 2,5 | 97,375 | 22,24 | 55,6 |
| 2º | Varanda | 10,27 | 0 | 0 | ||
| TOTAL | 262,46 | 666,696 | 261 | 770,49 |
As áreas exteriores da casa são dispostas da seguinte forma:
| Exteriores | Área Plana | Janelas (aprox) | Área a pintar | |
|---|---|---|---|---|
| Fachada Nascente | 104,72 | 20 | 84,72 | |
| Fachada Sul | 60 | 7 | 53 | |
| Fachada Poente | 75 | 11 | 64 | |
| Fachada norte | 55 | 2 | 53 | |
| Extensão Sul | 34 | 4 | 30 | |
| Extensão Poente | 17 | 2 | 15 | |
| Entensão Norte | 20 | 20 | ||
| TOTAL | 365,72 | 46 | 319,72 |
| ID | Zona | Descrição | Modelo | Largura (cm) | Abertura | Espessura da parede (cm) | Comentários |
|---|---|---|---|---|---|---|---|
| 1 | R/C | Porta Sala (Dupla) | Pantografado AP1 | 160 | Direita | 13 | Com chave |
| 2 | R/C | Porta WC | Pantografado DP | 80 | Esquerda | 23 | On/Off WC |
| 3 | R/C | Sala das Máquinas | Correr por fora Pantografado DP | 80 | Direita | 13 | Com chave |
| 4 | 1º | Lavandaria | Pantografado DP | 80 | Esquerda | 14 | Com chave |
| 5 | 1º | WC L | Pantografado DP | 80 | Esquerda | 13 | On/Off WC |
| 6 | 1º | Quarto Conv. | Pantografado DP | 80 | Direita | 11 | Com chave |
| 7 | 1º | Quarto RT | Pantografado DP | 80 | Esquerda | 10 | Com chave |
| 8 | 1º | Quarto G | Pantografado DP | 80 | Esquerda | 12 | Com chave |
| 9 | 1º | WC Grande | Pantografado DP | 80 | Esquerda | 12 | On/Off WC |
| 10 | 1º | Quarto L | Pantografado DP | 80 | Direita | 11 | Com chave |
| 11 | 1º | Escadas Sotão | Pantografado DP | 80 | Esquerda | 13 | Com Chave |
| 12 | 1º | Despensa | Pantografado DP | 80 | Direita | 10 | Com chave |
Todas as portas tem puxadores Tupai 4007 5S na cor 158 (purist brass).
Todas as portas tem fechadura magnética.
As portas localizadas no rés-de-chão têm dobradiças ocultas, enquanto as do 1º andar têm dobradiças convencionais.
As portas dos WCs não têm chave, mas sim sistema de "Ocupado/Desocupado".
| ID | Descrição | Largura | Altura | Material | Vidro Laminado | Acústico | Fosco |
|---|---|---|---|---|---|---|---|
| 1 | Cozinha | 1380 | 1200 | PVC | Sim | ||
| 2 | Janela Sacada Sala 1 | 2050 | 2000 | Alumínio | Sim | ||
| 3 | Janela Sacada Sala 2 | 2050 | 2000 | Alumínio | Sim | ||
| 4 | Janela Sala 1 | 1200 | 1280 | PVC | Sim | Sim | |
| 5 | Janela Sala 2 | 1200 | 1280 | PVC | Sim | Sim | |
| 6 | Janela Sala 3 | 1200 | 1280 | PVC | Sim | Sim | |
| 7 | Janela WC R/C | 1200 | 1280 | PVC | Sim | Sim | Sim |
| 8 | Quarto RT Sul | 1300 | 1200 | PVC | Sim | ||
| 9 | Quarto RT Oeste | 1300 | 1200 | PVC | Sim | ||
| 10 | Closet | 1300 | 1200 | PVC | Sim | ||
| 11 | Janela WC L | 760 | 1200 | PVC | Sim | ||
| 12 | Quarto G | 1300 | 1200 | PVC | Sim | ||
| 13 | Quarto G Sacada | 1600 | 2000 | PVC | Sim | ||
| 14 | WC Grande 1 | 1220 | 1390 | PVC | Sim | ||
| 15 | WC Grande 2 | 1220 | 1390 | PVC | Sim | ||
| 16 | Quarto L Sacada | 1600 | 2000 | PVC | Sim | ||
| 17 | Sotão Sacada | 2000 | 2000 | PVC | |||
| 18 | Vidro Fixo 1º andar | 1000 | 2260 | PVC | |||
| 19 | Saída Churrasqueira | 1000 | 2300 | PVC | Sim | ||
| 20 | Saída R/C | 1000 | 2260 | PVC | Sim | ||
| 21 | Vidro Vitral | 830 | 2480 | PVC | |||
| 22 | Janela Sacada RT | 2000 | PVC | Sim | Sim |
A placa do rés-de-chão tem a seguinte composição:
15 cm de betão armado C25 com malha sol, em cima de brita 2.
4 cm de placas de isolamento XPS (poliestireno extrudido, tipo IFOAM)
10 cm de camada de cimento misturado com Leca (argila expandida), embutindo tubagens de electricidade, canalização e ventilação
6 cm de piso radiante hidráulico
4 cm de cimento fino de acabamento de contrapiso
2 mm de microcimento Espada F da Microcrete no global e Armadura Excelência Hidrofogo no WC
A altura final da placa ficou acima dos 35 cm.
Em todo o perimetro do sub-piso foi ainda criada uma rede de drenos que permite a escoação de águas pluviais para o exterior
A placa existente do 1º andar foi mantida, no entanto esta apresentava desnivelamentos. Os mesmos foram corrigidos com camadas de cimento de 1 a 5 cm de altura ao longo do piso. Nos WCs foi instalada o aquecimento radiante hidráulico antes da correção do piso, enquanto nas restantes divisões foi dado o desconto da mesma para posterior aplicação enquanto sub-piso antes do acabamento final (flutuante hidrofugo da FINSA - Herringbone Dijon).
Para o WC pequeno usou-se 3L de base com 1,5L de resina hidrofuga para cada uma das demãos.
O 2º andar era composto por chão de madeira de pinho. Todo o piso da parte habitável foi afagado e envernizado. O mesmo foi mantido, afim de manter a traça da casa. Por baixo deste existia um tecto falso para o primeiro andar. O mesmo foi também mantido, mesmo com a construção de um 2º tecto falso por baixo do mesmo.
No sotão foi instalado pladur hidrofugo em todo o perímetro, com lã de rocha de 128mm com revestimento de alumínio na face que confronta com o telhado. Nas zonas rebaixadas, foi instalado XPS em vez de lã de rocha, para melhor isolamento.
No 1º andar, as paredes são de tijolo, aparte da parede que separa o WC grande com o quarto sul. Esta foi construida do lado do WC com pladur hidrofogo, e do lado do quarto com pladur acústico. Também foram construídas 2 paredes de pladur junto às de tijolo já existentes para reforço acústico. Uma delas foi construida no quarto sul poente, na fronteira o quarto sul nascente. A outra foi construida no quarto poente, para o lado do quarto sul poente.
Os tectos do primeiro andar são de pladur standard, com lã de rocha de 160mm.
No rés de chão, foi instalado pladur hidrofogo em todo o perimetro da sala/cozinha, tendo por trás Boltherm termo-acústico. A parede norte tem Aquapanel, que em vez de ser de pladur é feita de fibras e cimento. Essa parede foi ainda toda revestida a XPS e feita uma parede de frente, para deixar caixa de ar. O WC foi construido no interior com pladur hidrofugo, e no exterior com pladur acústico, assim como o hall de entrada que também tem pladur acústico.
Os tectos foram feitos com pladur standard, reforçados com lã de rocha de 200mm.
Todo
A parede norte da sala ficou reforçada com madeira de confragem por dentro, afim de poder acolher um suporte para televisão.
As devidas medidas do suporte são identificadas na imagem abaixo.

A parede da cozinha que faz confrontação com o Hall de entrada também ficou reforçada com madeira de confrangem, para poder suster os móveis de cozinha.
As medidas são detalhadas abaixo.

A pintura interior foi feita em geral com tinta Robbialac Clean & Go, cor branca Mate.
A excepção deu-se nas casas de banho, em que foi usada tinta para a humidade Rabbiotel (também da Robbialac), com cores distintas por divisão.
A casa de banho de maior área no primeiro andar, foi pintada de verde para contrastar com os detalhes em dourado dos demais artefactos.
A cor escolhida para esta casa de banho está detalhada na imagem abaixo.

A casa de banho de menor área no primeiro andar foi pintada de creme, a fim de contrastar com os demais detalhes em rosa dourado. Os detalhes da cor escolhida para esta casa de banho estão indicados abaixo.

A casa de banho do Rés-de-chão foi pintada em cinzento para contrastar com os apontamentos em preto das restantes instalações sanitárias (excluindo a sanita). Os detalhes da cor apresentam-se abaixo.

O primário usado na casa (excluindo a extensão da casa feita em capoto) foi o Robbialac Armadura Consolidante NG.
Na parte do capoto foi o Viero da Robbialac.
A tinta de cor salmão da casa é da Robbialac e tem a seguinte referência: CRF 037-1
Para a pintura usou-se a tinta Robbialac Aquarepel.
A mesma tinta em cor branca foi usada
O piso radiante hidráulico encontra-se instalado somente no Rés-de-Chão. Este está dividido por secções para garantir a uniformidade do aquecimento nas diversas áreas, prevenindo problemas tais como áreas com maior exposição solar, ou áreas mais distantes da bomba de calor sejam afectadas.
Adicionalmente à rede de aquecimento radiante, foi instalada uma rede de aquecimento por via de termoconvectores, utilizando a rede hidráulica com base na bomba de calor.
Essa rede funciona no 1º andar, e ainda existe uma pré-instalação no 2º andar.
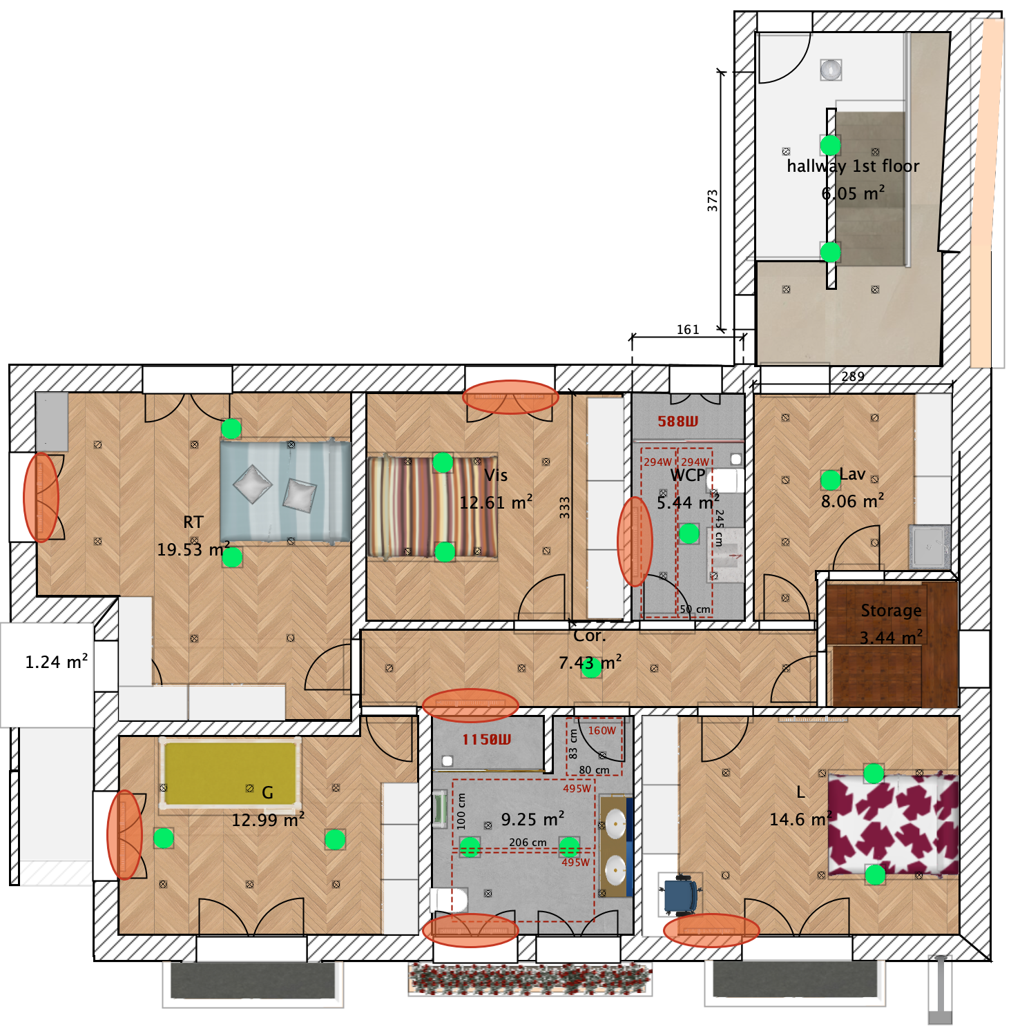
O mapa de instalação da rede no 1º andar, é composta por 7 elementos, dispostos da seguinte forma:

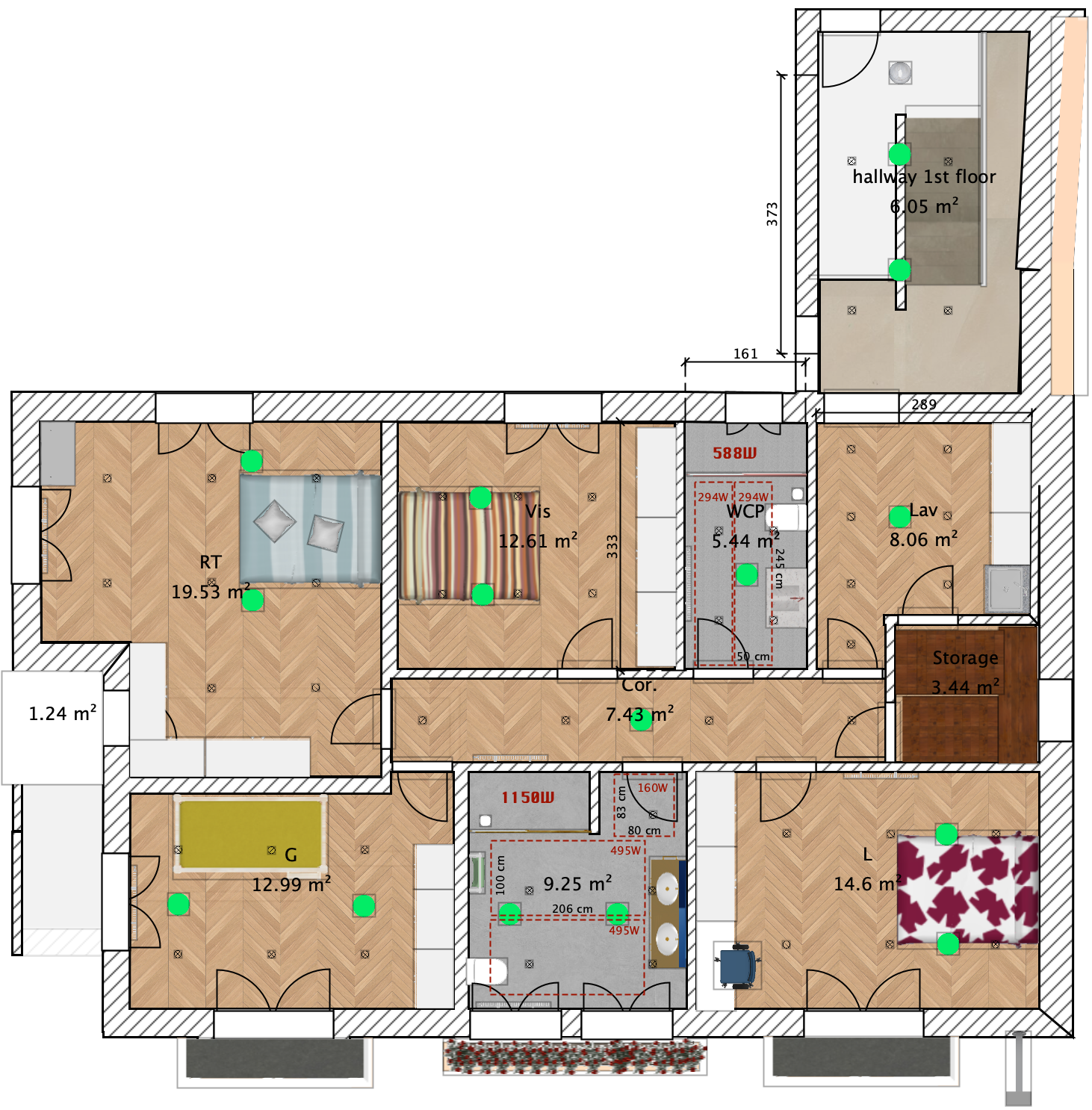
O piso radiante eléctrico foi instalado somente no primeiro andar. Nos WCs foi instalado por baixo do piso de cimento pois o acabamento é em microcimento. Nas restantes divisões a instalação é feita directamente debaixo do piso flutuante. O piso radiante eléctrico é um "heating film" Sul Koreano que consome 240W / m2.
Os consumos esperados por divisão são os seguintes:
| Divisão | Área (m2) | Volume (m3) | Área do radiante (m2) | Potência (W) |
|---|---|---|---|---|
| WC Pequeno | 5,44 | 14,69 | 2,45 | 588 |
| WC Grande | 9,25 | 24,98 | 4,78 | 1148 |
| Hall | 6,05 | 16,335 | 2,52 | 607 |
| Lavandaria | 8,06 | 21,762 | 5,29 | 1270 |
| Corredor | 7,43 | 20,06 | ||
| Quarto RT | 19,53 | 52,73 | ||
| Quarto Visitas | 12,61 | 34,05 | ||
| Quarto G | 13 | 35,1 | ||
| Quarto L | 14,6 | 39,42 | 8,68 | 2083 |
| TOTAL | 95,97 | 259,127 | 15,04 | 5696 |
As plantas de instalação por divisão são mencionadas de seguida.



O radiante no hall não ficou ligado, portanto não funciona.





O ar condicionado foi projectado para o 2º andar, visto ter necessidades não só de aquecimento mas também de arrefecimento mais complexo, devido à excessiva exposição solar e protecção térmica mais ténue.
O recuperador de calor da sala (com ventilação para a área das escadas) tem as seguintes caracteristicas:
Modelo: Recuperador Ventilado Panadero C-820-S
Certificação energética:

A casa tem uma rede combinada de electricidade, em conformidade com o plano de especialidades.
Todos os circuitos da casa são monitorizados por componentes Shelly Pro 4PM, que permitem fazer medições individualizadas de cada um.
A cablagem electrica em uso consite em cabos de 1,5 para iluminação, e 2,5 para tomadas.
Todos os interruptores de luz são da marca Currysmarter link, com LED, aplicação smart-home e interligação com Alexa / Google Home.
Todos os interruptores de persianas são da marca Currysmarter link, com LED, aplicação smart-home e interligação com Alexa / Google Home.
A iluminação é feita com focus GU10 da Philips Hue, fitas LED também da Philips Hue e candeeiros suspensos.
O resumo da iluminação nas diversas áreas da casa é resumido abaixo.
| Divisão | Focus | Candeeiros | Fitas de LED (ML) |
|---|---|---|---|
| Rés de Chão | |||
| WC | 3 | 2 (no nicho e por baixo do móvel) | |
| Hall | 3 | ||
| Cozinha | 7 | 1 | 11,66 (faltam as 2 fitas por baixo da bancada da cozinha e por baixo dos moveis superiores) |
| Sala | 20 | 2 | 21,58 + 24,62 (faltam as 3 fitas do nicho da lareira) |
| Hall / Escadas | 5 | 1 | Fita led para nicho no meio das escadas |
| 1º Andar | |||
| Quarto RT | 8 | ||
| Quarto Visitas | 6 | ||
| WC Pequeno | 4 | fita no tecto | |
| Lavandaria | 7 | ||
| Quarto L | 6 | ||
| WC Grande | 4 | fita no tecto | |
| Quarto G | 6 | ||
| Corredor | 4 | ||
| Sotão | 12 | 2 | 30 (no rodapé) |
| TOTAL | 95 | 6 | 58 |
De momento tenho os seguinte productos comprados:
Hue 46 Gu10 Brancas
Goovee 20 Gu10 coloridas
Já estão 15 Gu10 brancas instaladas
Total: 81 luzes
Faltam: 12 luzes
As Goovee ficavam bem na sala e sala de jantar.
No quarto RT, deveriam ficar 8 Hue coloridas.
Dai o que é recomendável comprar é:
8 Gu10 Hue Color - €85,12 (net) cada 3 - €255
Total: 255 euros (net)
A iluminação do sotão é composta por 3 grupos (G) de luzes e 2 candeeiros (C).

A fileira de interruptores no cimo da escada está configurada da seguinte forma:
o primeiro interruptor controla o C1 e o G1;
o segundo interruptor controla o G2 e o G3;
o terceiro interruptor controla o C2.
As lâmpadas Gu10 nesta divisão são de várias marcas, conforme indicado abaixo:
As 2 lâmpadas do Grupo 1 são lâmpadas genéricas (Smart GU10), coloridas com controlo Wi-fi;
As 6 lâmpadas do Grupo 2 são lâmpadas Govee GU10 Coloridas, com controlo wi-fi;
As 4 lâmpadas do Grupo 3 são lâmpadas OSRAM Smart+ Spot Gu10 Tunable White, controlo ZigBee.
Os endereços dos Shellys são os seguintes:
192.168.1.12 - Water controllers (machine's room)
192.168.1.14 - Floor Heating (despensa 1º andar)
192.168.1.16 - Luzes Exteriores (Hall R/C)
192.168.1.22 - Outdoor Drying Area
192.168.1.24 -
As tomadas eléctricas são na sua grande maioria convencionais, no entanto nos WCs tem protecção anti-humidade e em muitos dos pontos têm ligação directa USB e USB-C.
| Divisão | Individuais | Duplas | Triplas | Quadruplas | USB / USB-C | ITED | Notas |
|---|---|---|---|---|---|---|---|
| Rés de Chão | |||||||
| WC | 3 | 1 | 1 | a dupla é superior | |||
| Hall | 5 | ||||||
| Cozinha | 11 | 1 | 1 | 1 | 1 numa tripla | 8 das 11 individuais estão escondidas | |
| Sala | 7 | 2 | 2 | 1 | 1 | 3 ited numa tripla | |
| Escadas | 5 | ||||||
| 1º Andar | |||||||
| Quarto RT | 8 | 1 | 2 | 1 em dupla | |||
| Quarto Visitas | 4 | 1 | 2 | 1 em dupla | |||
| WC Pequeno | 1 | ||||||
| Lavandaria | 6 | 2 | |||||
| Quarto L | 6 | 1 | 2 | 1 em tripla | |||
| WC Grande | 2 | ||||||
| Quarto G | 6 | 1 | 2 | 1 em dupla | |||
| Corredor | |||||||
| Sotão | 8 | 1 | 2 | 2 | 1 em individual | ||
| TOTAL | 72 | 10 | 6 | 1 | 15 | 9 | |
| 54 | 10 | 6 | 1 | 13 |
As tomadas electricas a serem instaladas são da BSEED E-Series. Inicialmente foram instaladas algumas de outras marcas, mas a ideia é transferir tudo para a BSEED para ficar tudo consistente.
Faltam 18 tomadas
Em packs de 4 - €23,59 (faltam 4 packs e as outras 2 podem ser das que já tenho)
Total: €94,36 (net)
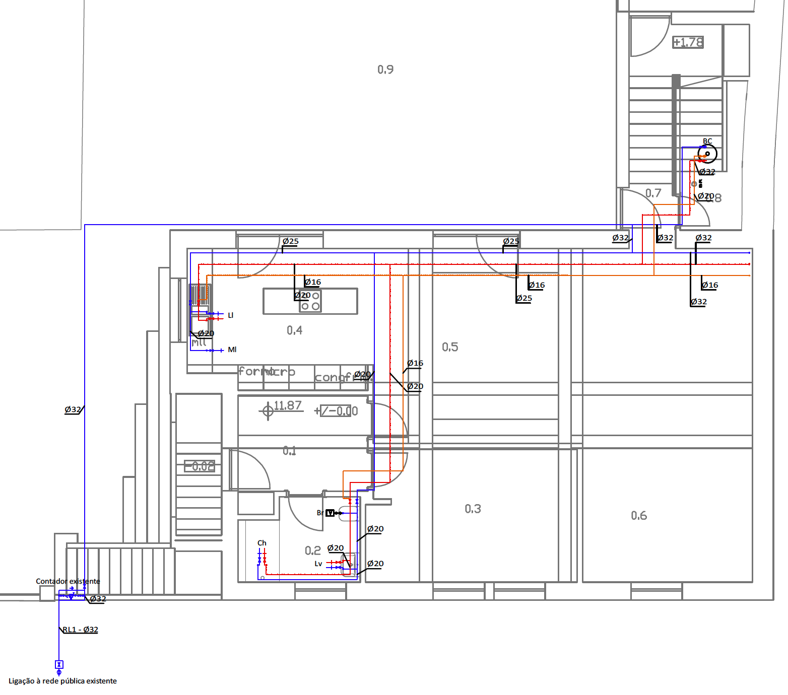
À excepção dos tubos que passam por baixo do chão no rés-de-chão, que são PEX, todos os tubos de canalização da casa são multicamada.
A entreda de águas na casa, conta com um filtro de osmose inversa, assim como um filtro descalcificador. O filtro de osmose inversa requer uma manutenção de periocidade anual, enquanto o filtro descalcificador tem um tempo de vida de 7 a 8 anos.
Em conformidade com as especialidades, a casa tem um circuito de re-circulação da água, que permite em meros segundos ter água quente em qualquer ponto da casa.
O filtro de osmose tem uma lampada Ultra Violeta que periodacamente terá que ser substituída. A referência da lâmpada é a "Purion UV-Lampe 17W 200 00300 0000".
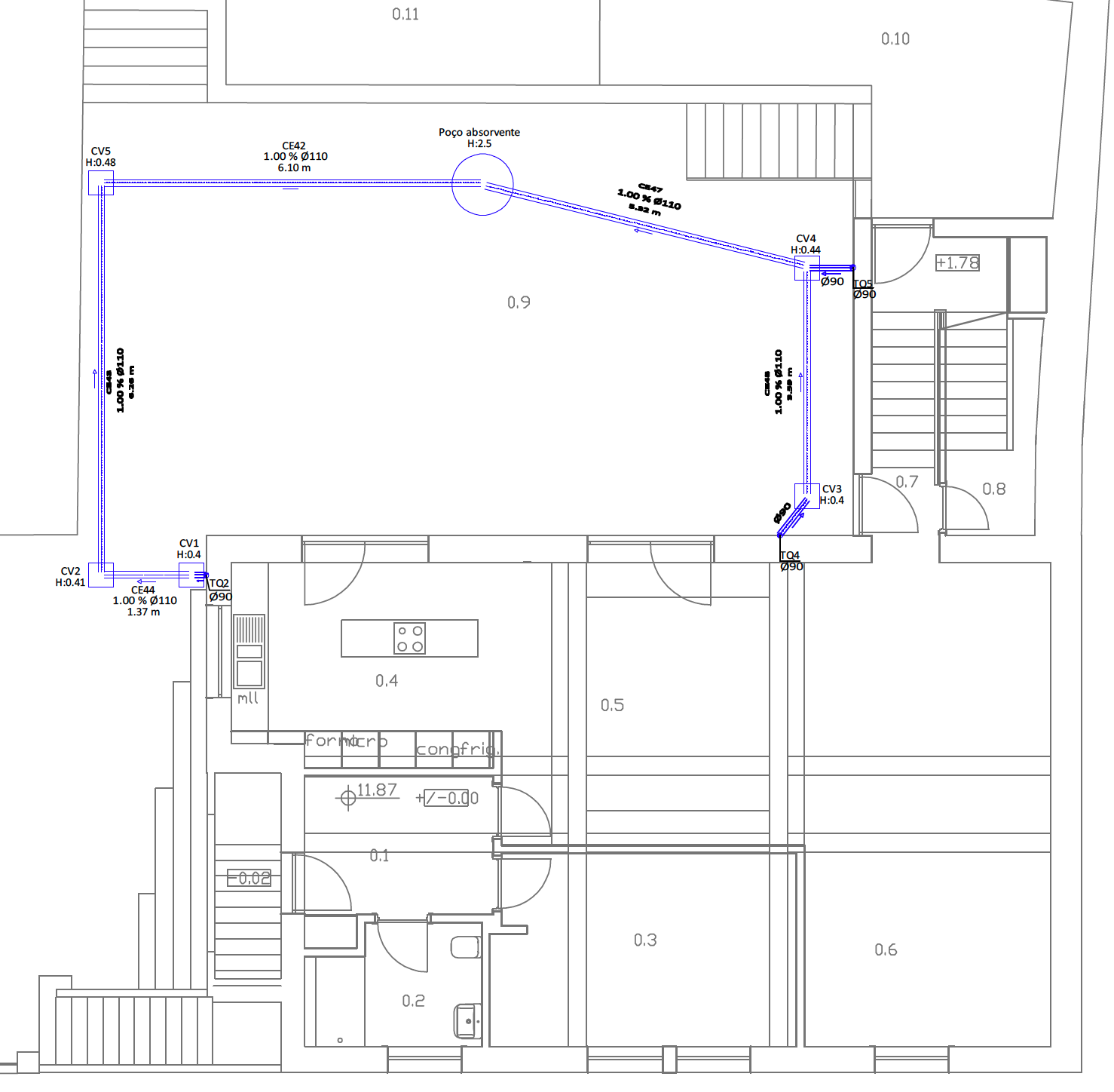
O projecto de abastecimento geral é demonstrado abaixo.

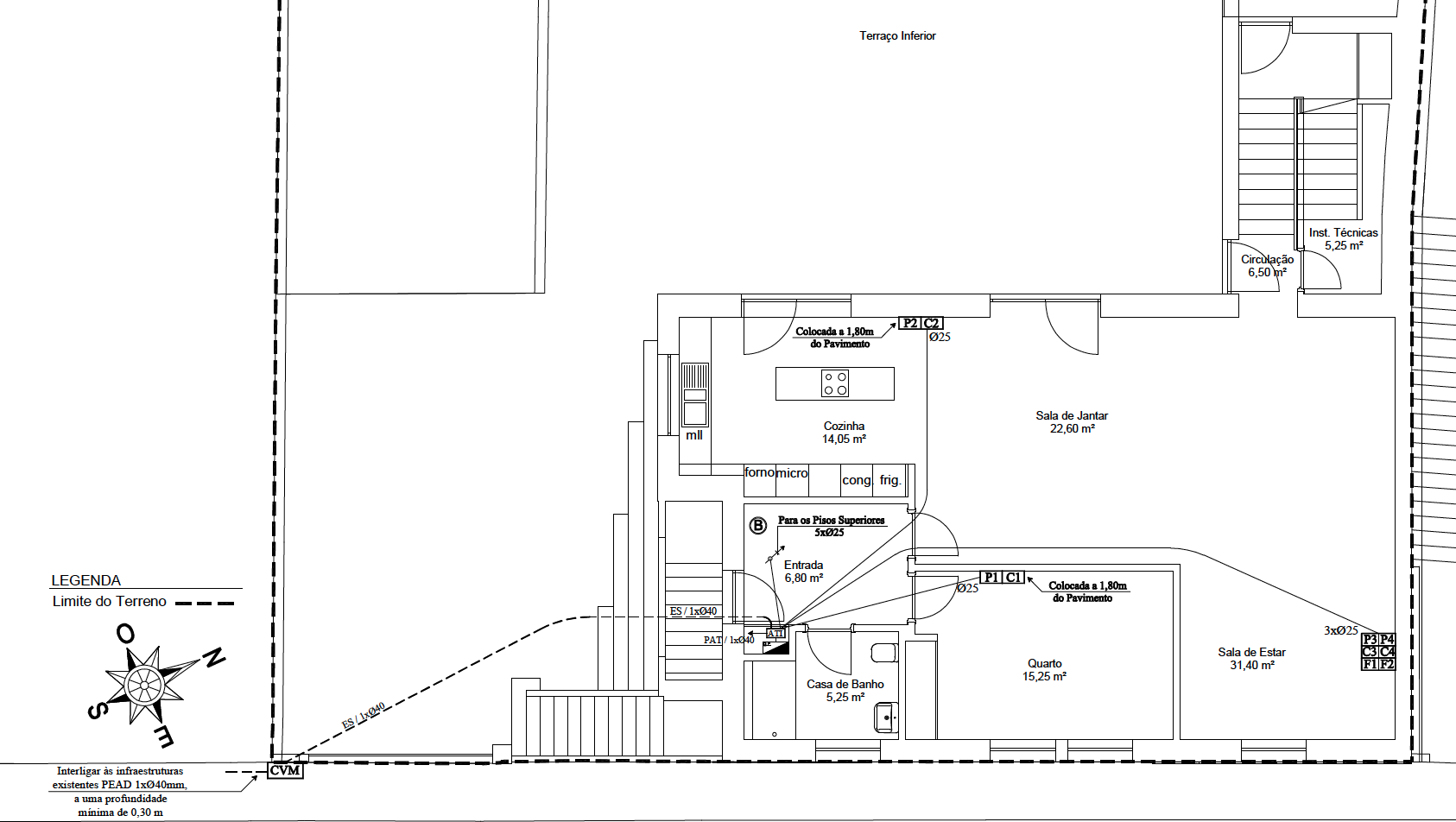
A planta de abastecimento do Rés-de-chão é demonstrada de seguida.

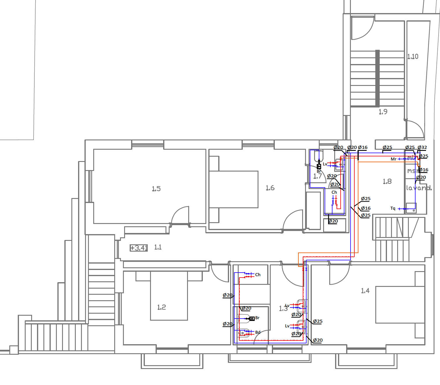
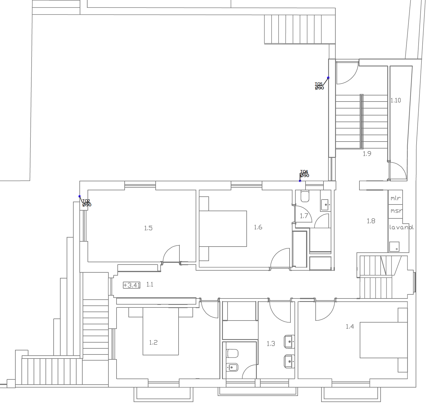
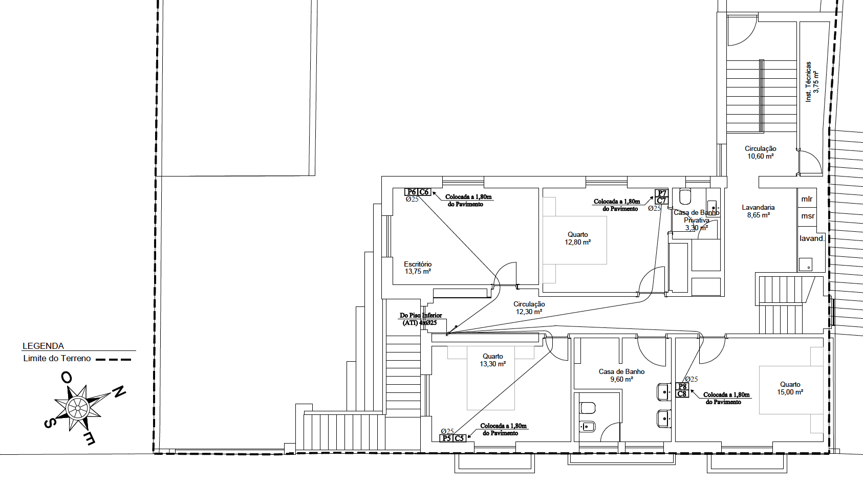
A planta de abastecimento do 1º andar é demonstrada de seguida.

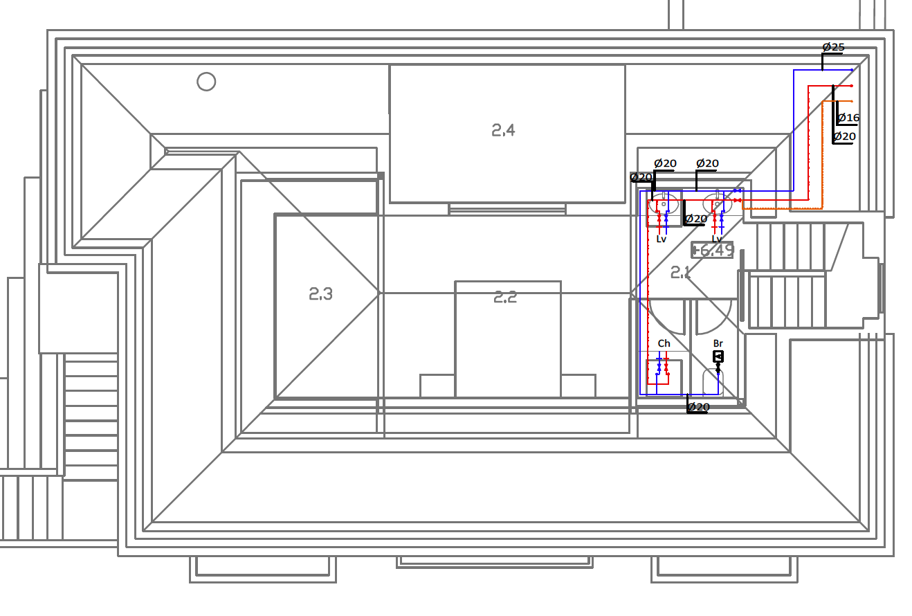
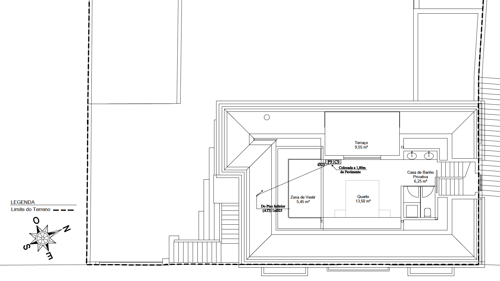
A planta de abastecimento do 2º andar é demonstrada de seguida.

O abastecimento do 2º andar, ao invés da planta, faz-se a partir do centro da parede nascente, por cima do quarto nascente/sul do 1º andar. Esta foi uma alteração ao projecto por uma questão de facilitar a instalação.
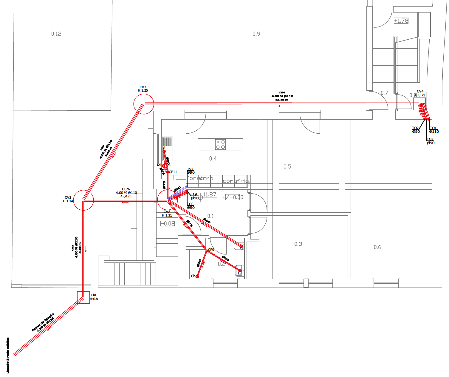
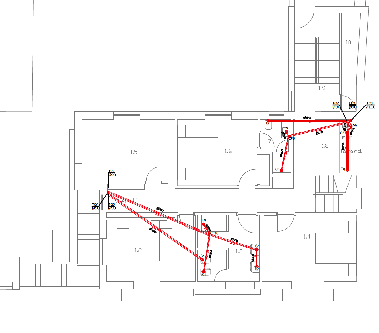
A rede de esgotos foi feita com tubos acústicos de saneamento, para garantir a insonorização da passagem de detritos e águas.
Existem 2 saídas de esgotos da casa, que convergem antes do ramal. Uma das saídas passa junto à frente da casa, pela zona do WC do rés-de-chão, enquanto a outra sai pela zona poente, junto aos interruptores da sala.
A rede de esgotos tem um ramal exclusivo de saída para a rede pública.




Existe uma rede de drenos de águas pluviais por baixo da placa do rés-de-chão, assim como em volta do terraço da casa. A sala das máquinas descarrega algumas águas para a rede drenos do terraço.
A rede de águas pluviais tem um ramal exclusivo de saída para a rede pública.





| Zona | Descrição | Quantidade |
|---|---|---|
| R/C | Cozinha | 1 |
| R/C | Sala | 3 |
| R/C | WC | 1 |
| 1º | WC Pequeno | 1 |
| 1º | Quarto convidados | 1 |
| 1º | Quarto RT | 2 |
| 1º | Quarto G | 2 |
| 1º | WC Grande | 2 |
| 1º | Quarto L | 1 |
| 2º | Varanda | 1 |
A rede ITED da casa é composta por elementos de telecomunicações que vão desde o vídeo-porteiro até à rede de comunicações por rede e sinal de televisão.
O vídeo-porteiro tem um elemento de comuniação no exterior da casa, que permite ver e comunicar com quem o acciona. A comunicação é estabelecida com os elemento intermos da casa que estão dispostos nos 3 pisos. Existe um intercomunicador no rés-de-chão, na sala perto do hall de entrada, outro no 1º andar na lavandaria e outro no 3º andar junto às escadas.
Existem ligações de rede RJ45 em todos os quartos assim como no rés-de-chão e 2º andar. Além das mesmas, existe ainda router-switches que fazem a distribuição da rede nos 3 pisos. As mesmas são capacitadas de tecnologia PoE (Power over Ethernet) que permite não só comunicar com os dispositivos, assim como os permite carregar em baixa potência.
O diagrama principal de ligações de rede é o seguinte:

A casa está equipada com distribuidore de sinal de TV nos 3 pisos. O sinal é adquirido a partir do router central de comunicações e ainda através de antenas parabólicas instaladas no telhado, que têm cobertura para o Hispasat, Hotbird e Astra. O sinal do Hispasat é recepcionado através de uma flat antena, enquanto o sinal do Astra e do Hotbird são recepcionados por uma antena circular de 110cm de diâmetro, com LNB duplo, para captura de sinal dos dois satélites.
O diagrama de ligações para a televisão por satélite é o seguinte:
A casa está equipada com uma antena e amplificador de sinal 5G, visto a casa ter paredes muito grossas que diminuem a força do sinal, que por si já é bastante fraca na rua. O amplificador distribui distribui rede 5G para todos os andares. O diagrama de ligações é apresentado de seguida.




| Room Size | Speaker Quantity |
|---|---|
| 1-10m² | 1 speaker |
| 11-30m² | 2 speakers |
| 31-60m² | 4 speakers |
| 61-80m² | 6 speakers |
Arylic WBC65 6.5" Wireless Multiroom Ceiling Speaker × 8 (Master + Slave)
Arylic WBC65 6.5" Wireless Multiroom Ceiling Speaker × 4 (mono)
Arylic RK30 Wall Mount Cube Speaker (pair) × 3
Polk Audio RC60i (pair) x 3
Arylic Up2Stream Mini - Multiroom Wi-Fi Streamer Board (No Amp) × 5
Arylic Up2Stream Amp - Multiroom Wireless Streaming Stereo Amplifier Board × 7
Nota: As colunas Arylic RK30 precisam de um amplificador. O aconselhado para cada par de colunas é A30+ 30W x 2 WiFi Mini Stereo Amplifier.
Ainda pretendemos comprar um subwoofer embutido para tecto https://www.thomann.pt/bose_designmax_dm8c_sub_white.htm
Na sala de estar temos ainda um sistema sonos composto por:
Para a churrasqueira optou-se por um sistema stereo composto por Sonos Era 100.



O projector é um Acer X1827, com 4000 lúmenes ANSI DLP 4K branco.
A passagem para o projector tem 2 cabos a passar:
1 cabo HDMI (input)
1 cabo de currente 220V
O elevador do projector tanto pode ser controlado com o controlo remoto, como pode ser controlado com o controlo central que fica por baixo da TV.
Segue abaixo os QR codes das câmeras de vigilância:



A cor da cozinha tem a seguinte referência: RAL 1019
Na cozinha temos uma panóplia de electrodomésticos, cujas as dimensão são especificadas abaixo.
| Item | Marca | Modelo | Dimensões de instalação (AxLxP) |
|---|---|---|---|
| Frigorífico | Bosch | KIR81AFE0 Series 6 | 1775.0 x 560 x 550 |
| Placa de indução | Bosch | PXX875D67E Series 8 | 223 x 750-750 x 490-490 |
| Microondas | Bosch | BFR634GS1 | 220 x 350 x 270 |
| Gaveta de Aquecimento | Bosch | BIC630NS1 | 140 x 560 x 550 |
| Forno | Bosch | HBG675B.1 | 585-595 x 560-568 x 550 |
| Máquina de Lavar Louça | AEG | FSE76727P | 818 x 596 x 560 |
| Frigorifico de vinhos | GGM Gastro | WKM100S-2N | 840 x 495 x 580 |
| Aspirador debaixo da bancada | Ritter | 940610 | 105 x 450 x 365 |
| Triturador de resíduos | InSinkerator | Evolution 100-3B | ver manual |
Na cozinha existem 2 lava-loiças, um principal e um auxiliar perto da zona da placa de indução.
Ambos são da Blanco Subline, um do modelo 700U e outro do modelo 160U.
As especificações de ambos seguem abaixo.




Temos ainda 7 buracos na bancada, com as seguintes especificações.
| Item | Diametro (mm) |
|---|---|
| Pia Principal | |
| Torneira | 35 |
| Dispensadores de detergente (2x) | 27 |
| Botão do triturador | 33 |
| Pia Secundária | |
| Torneira | 35 |
| Dispensador de detergente | 27 |
| Tomada elétrica extraível | 125 |
As lâmpadas superiores são E27, de 4W, 2700K, sem serem dimmable.
O pavimento da entrada da casa é da Macel com referência 204/5.
O páteo tem relva sintetica.
A árvore central é uma Cerejeira Japonesa de flor branca, comprada a 27 de Julho de 2025, já com cerca de 4 metros de altura. O nome cientifico da árvore é "Prunus Avium 'Pleana'" com código PAP 20/25.
As plantas da entrada, junto ao arco da porta principal são Buxus Bola, comprados com 35/40cm. Em frente temos 5 plantas "Thuja ocidentalis 'Esmeralda'".
Compramos também um Carvalho americano "Quercus Coccinea ou Rubra???", a 13 de Julho de 2025, com cerca de 5 metros de altura.
O telhado da churrasqueira é composto por uma camada de forro branco, que tem XPS em cima e telhas Coelho da Silva Marselha Primus.
O Forno encontrasse enterrado por trás da churrasqueira com medidas de 90x90.
A churrasqueira tem medidas interiores de 85cm, com chaminé. A altura do tecto até ao chão no local da churrasqueira é de 3,30m.
Na churrasqueira temos um grelhador adaptado "Barbecue Drawer Merida Imex El Zorro".
O objectivo deste capítulo é ter acesso facilitado e rápido aos manuais de instruções dos diversos dispositivos e elementos da casa. Abaixo segue uma lista com os diversos documentos.
| ID | Descrição | Link |
|---|---|---|
| 01 | Frigorífico | Bosch KIR81AFE0 Series 6 |
| 02 | Motor de Projector | TLMPL-1M |
| 03 | Forno | Bosch_HBG675B.1 |
| 04 | Aspirador de Cozinha | Ritter_940610 |
| 05 | Gaveta de Aquecimento | Bosch_BIC630NS1 |
| 06 | Microondas | Bosch BFR634GS1 |
| 07 | Secadora de roupa | Bosch WTW87541 Series 8 |
| 08 | TV Philips | TV Philips 50´´ |
| 09 | TV Samsung | TV Philips 85´´ |
| 10 | Frigorífico para vinhos | Wine Cooler WKM100S-2N |
| 11 | Máquina Loiça | AEG FSE76727P |
| 12 | Placa de Indução | Bosch PXX875D67E Series 8 |
| 13 | Máquina de gelo | Ice Maker EWBH356W-N |
| 14 | Máquina lavar roupa ((falta fazer download do manual)) | Bosch Series 6 |
| 15 | Sirene de Alarme exterior | Bosch Outdoor Siren |
| 16 | Curtinas Motorizadas - Rails | Abalon_Tracks |
| 17 | Aspirador de Casa e Jardim | Bosch Advanced Vac 20 |
| 18 | Colunas Polk rc60i | Polk rc60i |
| 19 | Arylic WBC65 6.5" Wireless Multiroom Ceiling Speaker | Arylic WBC65 |
| 20 | Arylic RK30 Wall Mount Cube Speaker | Arylic RK30 |
| 21 | Arylic Up2Stream Mini | Arylic Up2Stream Mini |
| 22 | Arylic Up2Stream Amp | Arylic Up2Stream Amp |
| 23 | Arylic A50+ | Arylic A50+ |
| 24 | Bomba circuladora | Alpha2 25-60 180 |
| 25 | Triturador de comida | InSinkErator Evolution 100 Waste Disposal Unit |
| 26 | Armário Servidor | Digitus Branco |
| 27 | Currysmarter Smart Light Switch | Currysmarter Light |
| 28 | Currysmarter Smart Shutter Switch | Currysmarter Curtain |
| 29 | Concealed_ceiling_curtain_user_manual | Ceiling curtain projector |
| 30 | BSeed Smart Socket & Switch | BSeed Switch |
| 31 | Projector Acer X1827 | Acer X1827 |
| 32 | Wavlink | Wavlink Wifi 6 Outdoor Mesh Router/AP/Repeater |
| xx | Currysmarter Smart Light Switch | Currysmarter Light |
Neste capítulo declaram-se os diversos orçamentos que tivemos para os diferentes serviços prestados. De notar que a obra foi realizada com o empreiteiro Manuel Rodrigues, que ao invés de se cobrar via orçamento apresentado, fazia trabalho cobrado à hora, com uma média de €15/hora.
| ID | Descrição | Link |
|---|---|---|
| 01 | Orçamento para o banco | Noxyster Group |
| 02 | Janelas Caixiterm [escolhido] | Caixiterm |
| 03 | Janelas RCL | RCL |
| 04 | Cozinha JPMarques [escolhido] | JPMarques |
| 05 | Cozinha Leroy Merlin | Leroy Merlin Cozinha |
| 06 | Cozinha Pedrosas | Pedrosa e Filhos |
| 07 | Guarda-corpos Artimira [escolhido] | Artimira |
| 08 | Guarda-corpos Vidraria Central do Porto | Vidraria Central do Porto |
| 09 | Portas e Chão Beira Portal [escolhido] | Beira Portal |
| 10 | Portas Covema | Covema |
| 11 | Portas Bruno Miguel Pedrosa | Bruno Miguel Pedrosa |
| 12 | Portas Pedrosa e Filhos | Pedrosa e Filhos |
| 13 | Climatização Electroclima | Electroclima |
| 14 | Caleiras | MetalCaleira |
| 15 | Portas Beira Portal | BeiraPortal |
| 16 | Chão Beira Portal | BeiraPortal |
A planta de arquitectura em formato DWG pode ser descarregada através do seguinte link.
Todas as obras de benfeitoria que possam vir a ser executadas na casa, tem um beneficio fiscal, taxadas a 6% de IVA. Para tal, é necessário entregar o certificado ARU, que se encontra no seguinte link.
O prestador de serviços poderá/deverá introduzir o seguinte paragrafo na(s) factura(s):
Empreitada com Taxa de IVA reduzida para obras em edifícios situados da Área de Reabilitação Urbana (ARU) do Centro Urbano da Figueira da Foz conforme certidão no 226/2023 do Município de Figueira da Foz datado de 16/05/2023, referente ao prédio urbano sito Rua Dez de Agosto, no113 - Freguesia de Buarcos e São Julião, Artigo Matricial Urbano no 1282.